Bâtiment d’ateliers professionnels

Fondation Clos Fleuri

  • Concours
    2024, 2ème rang, 2ème prix

Le site se situe le long de la route qui fut, jusqu’à la 2e moitié du XIXe siècle, la principale liaison entre Broc et l’axe Bulle – Intyamon. Il constitue la troisième entité construite d’une séquence bâti / paysage, du sud vers le nord:

– le bourg fortifié de Gruyères, stable dans sa morphologie, construit dans une situation stratégique en symbiose avec sa colline,
– Épagny, structure villageoise forte dont l’expansion est récente,
– un site industriel artificiellement structuré, né ex nihilo au début des années 2000.

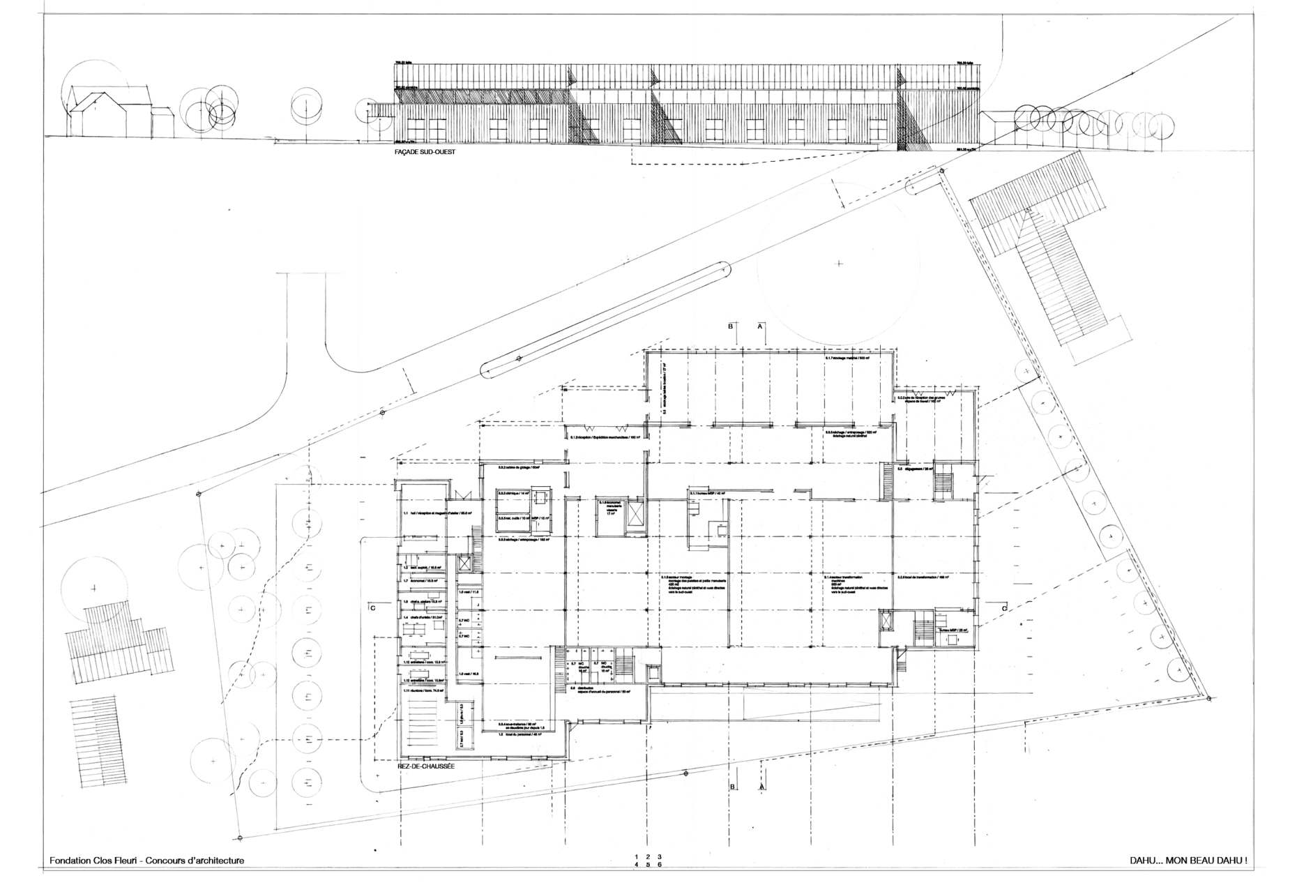
Dans ce lieu, le seul repère pour une implantation est la ligne droite du canal de la Trême, que la trame orthogonale de la zone industrielle suit scrupuleusement. Au surplus, le cahier des charges relaie le souhait de projeter un bâtiment qui se caractérise par sa discrétion. Dans ce contexte, le projet s’approprie les règles suivies par les volumes existants.

Par la discrétion de sa matérialité et par l’échelle domestique de ses travées, outil de son découpage volumétrique, il se rend complice de l’échelle des village voisins.